Dogashima Land Hohia/Vacation STAY 76251 | Casa en Tago
Casa




Tarifas disponibles:
3 Habitación Casa en Nishina, Tago
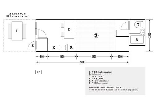
Dogashima Land Hohia / Vacation STAY 76251 está en Tago y dispone de alojamiento con wifi gratis a 2,2 km de Playa de Sehama, a 12 km de Cabo Koibito Misaki y a 37 km de Monte Daruma. Esta casa o chalet está a 48 km de Templo Shuzenji y a 49 km de Parque Nacional de Fuji-Hakone-Izu. La casa o chalet tiene 1 dormitorio con aire acondicionado y una cocina totalmente equipada con nevera. Dogashima Tensodo Cave está a 2,4 km del alojamiento, y Tago-minato está a 2,7 km.
Dogashima Land Hohia/Vacation STAY 76251 se encuentra en Tago.
Este 3 Dormitorios Casa es adecuado para turistas y viajeros. Tiene varias comodidades que garantizarían su comodidad. Estas comodidades incluyen: Aire acondicionado, Seguridad, Chimenea/Calefacción, y varios otros. Esta es una propiedad con clasificación de estrellas 3 . ¿Llegar a Tago y necesitar un lugar para quedarse? Ya sea para el trabajo o por el ocio, considere quedarse en este Casa para su próxima visita, Seguramente te encantará.
Puede verificar las revisiones y la descripción de este 3 Dormitorios Casa Si desea obtener más información sobre este lugar Hotala.es en Tago. Estos detalles son Auténtico, como son proporcionados por nuestro socio, Booking.com.
Este Dogashima Land Hohia/Vacation STAY 76251 en Tago está bien equipado y tiene todo Instalaciones que se han enumerado a continuación. Tenga en cuenta que estos detalles fueron compartidos por Booking.com para la lista "Dogashima Land Hohia/Vacation STAY 76251". Confiamos únicamente en sus detalles compartidos y somos considerados "precisos". Si tiene alguna preocupación sobre el información o precisión que describe esto Casa, por favor déjanos saber.
Número de licencia : ä¼ä¿è¡ç¬¬6-3å·ã®1
Comodidades
Descripción general de las instalaciones
-
Ropa de cama, toallas y otra colada lavadas según indicaciones de las autoridades locales
-
Alojamiento sellado tras su limpieza
-
Internet
-
WiFi gratis
-
WiFi
Políticas
Disposición de la habitación
Información de la habitación | Comodidades |
---|---|
Casa
Tipo de habitación:
Casa o chalet
El tamaño de la habitación:
14 m2
3 Futón
Cama
|
BañoBañera, Ducha, Baño privadoGeneralCalefacción, Aire acondicionadoCocinaFogones, Nevera, Utensilios de cocina, Cocina, Productos de limpieza, MicroondasInternetWiFiExterioresBarbacoaInstalaciones de la habitaciónTendedero |
Preguntas frecuentes
¿Es esto Nishina casa amigable para las mascotas para los invitados?
No, las mascotas no están permitidas en esta propiedad. permitido en esta propiedad.
¿A qué hora es el check-in y el check-out en Nishina casa?
La hora de entrada para Nishina casa comienza a contar desde 3:00 PM y la hora de salida es hasta 11:00 AM. Sin embargo, el check-in temprano o el check-out tardío a veces se pueden negociar entre el huésped y el propietario o el administrador de esta propiedad.
¿El Nishina casa tiene una piscina?
No, esta Nishina casa no tiene piscina. Vea los detalles sobre la disponibilidad de piscina interior o privada y otras instalaciones.
¿Cuánto cuesta por noche quedarse en Nishina casa?
Las mejores tarifas para Nishina casa comienzan desde $83 por noche con incluye Niño amigable, Internet, Aire acondicionado, Seguridad, Chimenea/Calefacción, Servicios de invitado con todas las demás instalaciones. Hotala.es coincide con todos los viajeros con su hotel, resort o alquiler perfecto y si viaja con un grupo, amigos, familiares o mascotas.
¿Es Nishina casa un lugar familiar para quedarse?
Según la información que hemos recibido del propietario o nuestro socio, esta no se considera una propiedad familiar. Según lo informado por el propietario o gerente, el casa no ha especificado que los niños son bienvenidos. Consulte los detalles sobre la idoneidad de su familia o consulte la propiedad para obtener más información.
¿Es el Nishina casa silla de ruedas accesible u ofrece servicios para invitados discapacitados?
Según la información recibida de nuestro socio, Nishina casa no ha especificado que sea accesible para sillas de ruedas. Un ascensor especificado como disponible en la propiedad. Los detalles de accesibilidad específicos se pueden abordar en la sección Detalles de la propiedad de esta página.
¿Cuál es la política mínima de estadía nocturna para el Nishina casa?
Con base en la información reportada por el propietario o administrador, el Nishina casa indica 1 day política de permanencia en esta casa. Se advierte a los huéspedes que la política de estadía mínima puede diferir según la temporada o la disponibilidad y puede quedar a discreción del propietario o gerente.
¿Qué política de cancelación está en su lugar para Nishina casa?
Según la información proporcionada por el propietario o administrador, los detalles de la política de cancelación de Nishina casa son los siguientes: Política de cancelación Se advierte a los huéspedes que la política de cancelación puede diferir según la temporada, la disponibilidad o las restricciones de viaje actuales. Los huéspedes también deben tener en cuenta que esta política puede estar sujeta a cambios y debe confirmarse antes de realizar la reserva. Más detalles pueden estar disponibles en esta página en la descripción de la propiedad. Sin embargo, el check-in temprano o el check-out tardío a veces se pueden negociar entre el invitado y el propietario o el gerente de esta propiedad.
La gente también pregunta
Lugares para quedarse cerca d Nishina, Tago
-
Más popular
-
Más popular
-
Precio más alto
-
El precio más bajo
-
Calificación más alta
-
Calificación más baja
- Aire acondicionado
- Estacionamiento
- Balcón/Terraza
- Aire acondicionado
- Estacionamiento
- TV
- Aire acondicionado
- Estacionamiento
- Piscina
- Aire acondicionado
- Estacionamiento
- TV
- Aire acondicionado
- Estacionamiento
- Vista
- Aire acondicionado
- Estacionamiento
- Silla de ruedas accesible
- Aire acondicionado
- Estacionamiento
- Piscina
- Aire acondicionado
- Estacionamiento
- TV
- Aire acondicionado
- Estacionamiento
- Vista
- Aire acondicionado
- Estacionamiento
- TV
- Aire acondicionado
- Estacionamiento
- TV
- Aire acondicionado
- Estacionamiento
- TV
- Aire acondicionado
- Estacionamiento
- Vista
- Aire acondicionado
- Estacionamiento
- Accesibilidad
- Aire acondicionado
- Estacionamiento
- Accesibilidad
- Aire acondicionado
- Estacionamiento
- Accesibilidad
- Aire acondicionado
- Estacionamiento
- Accesibilidad
- Aire acondicionado
- Estacionamiento
- Accesibilidad
- Aire acondicionado
- Estacionamiento
- Seguridad
- Aire acondicionado
- Estacionamiento
- Seguridad
- Aire acondicionado
- Estacionamiento
- Vista
- Aire acondicionado
- Estacionamiento
- Mascota amigable
- Aire acondicionado
- Estacionamiento
- Vista
- Aire acondicionado
- Estacionamiento
- TV