Architect-Designed House With Private Beach | Casa en Løgstrup

3 Habitación Casa en Hjarbæk, Løgstrup
Arkitekttegnet Hus Med Udsigt Og Privat Strand está en Løgstrup, a solo 49 km de Bosque tropical Randers Regnskov, y dispone de alojamiento con jardín y wifi gratis. Esta casa o chalet dispone de una terraza con vistas al mar y también incluye TV, una cocina bien equipada con nevera, lavavajillas y horno, y 2 baños. La casa o chalet ofrece zona de juegos infantil. El aeropuerto (Aeropuerto de Midtjyllands) está a 36 km.
Architect-Designed House With Private Beach se encuentra en Løgstrup.
Este 3 Dormitorios Casa es adecuado para turistas y viajeros. Tiene varias comodidades que garantizarían su comodidad. Estas comodidades incluyen: Barbacoa/Cocina al aire libre, Vista al océano, Seguridad, y varios otros. Esta es una propiedad con clasificación de estrellas 3 . ¿Llegar a Løgstrup y necesitar un lugar para quedarse? Ya sea para el trabajo o por el ocio, considere quedarse en este Casa para su próxima visita, Seguramente te encantará.
Puede verificar las revisiones y la descripción de este 3 Dormitorios Casa Si desea obtener más información sobre este lugar Hotala.es en Løgstrup. Estos detalles son Auténtico, como son proporcionados por nuestro socio, Booking.com.
Este Architect-Designed House With Private Beach en Løgstrup está bien equipado y tiene todo Instalaciones que se han enumerado a continuación. Tenga en cuenta que estos detalles fueron compartidos por Booking.com para la lista "Architect-Designed House With Private Beach". Confiamos únicamente en sus detalles compartidos y somos considerados "precisos". Si tiene alguna preocupación sobre el información o precisión que describe esto Casa, por favor déjanos saber.
Comodidades
Descripción general de las instalaciones
-
Hay kit de primeros auxilios
-
WiFi gratis
-
Internet
-
WiFi
-
Chimenea exterior
-
Barbacoa
-
Mobiliario exterior
-
Jardín
-
Terraza
Políticas
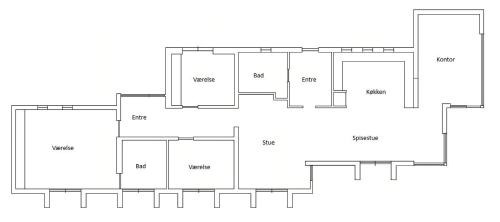
Disposición de la habitación
Información de la habitación | Comodidades |
---|---|
Casa Vacacional de 3 dormitorios
Tipo de habitación:
Casa o chalet
El tamaño de la habitación:
160 m2
|
Comida y bebidaTetera / cafeteraEquipamiento audiovisual y tecnológicoTVCocinaUtensilios de cocina, Mesa de comedor, Horno, Cafetera, Lavadora, Lavavajillas, Cocina, Hervidor eléctrico, NeveraZona de estarEscritorioBañoBaño privadoGeneralPapeleras, Calefacción, Detector de humo, Entrada privada, ExtintorExterioresBarbacoa, Muebles de exterior, TerrazaVistasVistas al marAccesibilidadToda la unidad accesible en silla de ruedasOferta de ocio y servicios para familiasJuegos de mesa / puzles |
Preguntas frecuentes
¿Es esto Hjarbæk casa amigable para las mascotas para los invitados?
No, las mascotas no están permitidas en esta propiedad. permitido en esta propiedad.
¿A qué hora es el check-in y el check-out en Hjarbæk casa?
La hora de entrada para Hjarbæk casa comienza a contar desde 3:00 PM y la hora de salida es hasta 10:00 AM. Sin embargo, el check-in temprano o el check-out tardío a veces se pueden negociar entre el huésped y el propietario o el administrador de esta propiedad.
¿El Hjarbæk casa tiene una piscina?
No, esta Hjarbæk casa no tiene piscina. Vea los detalles sobre la disponibilidad de piscina interior o privada y otras instalaciones.
¿Cuánto cuesta por noche quedarse en Hjarbæk casa?
Las mejores tarifas para Hjarbæk casa comienzan desde $409 por noche con incluye Mascota amigable, Accesibilidad, Balcón/Terraza, Frente al mar, Servicios de invitado, Niño amigable, Internet, Estacionamiento, Vista, Silla de ruedas accesible, Actividades deportivas, Chimenea/Calefacción, Barbacoa/Cocina al aire libre, Vista al océano, Seguridad con todas las demás instalaciones. Hotala.es coincide con todos los viajeros con su hotel, resort o alquiler perfecto y si viaja con un grupo, amigos, familiares o mascotas.
¿Es Hjarbæk casa un lugar familiar para quedarse?
Según la información que hemos recibido del propietario o nuestro socio, esta no se considera una propiedad familiar. Según lo informado por el propietario o gerente, el casa no ha especificado que los niños son bienvenidos. Consulte los detalles sobre la idoneidad de su familia o consulte la propiedad para obtener más información.
¿Es el Hjarbæk casa silla de ruedas accesible u ofrece servicios para invitados discapacitados?
Según la información recibida de nuestro socio, Hjarbæk casa no ha especificado que sea accesible para sillas de ruedas. Un ascensor especificado como disponible en la propiedad. Los detalles de accesibilidad específicos se pueden abordar en la sección Detalles de la propiedad de esta página.
¿Cuál es la política mínima de estadía nocturna para el Hjarbæk casa?
Con base en la información reportada por el propietario o administrador, el Hjarbæk casa indica 1 day política de permanencia en esta casa. Se advierte a los huéspedes que la política de estadía mínima puede diferir según la temporada o la disponibilidad y puede quedar a discreción del propietario o gerente.
¿Qué política de cancelación está en su lugar para Hjarbæk casa?
Según la información proporcionada por el propietario o administrador, los detalles de la política de cancelación de Hjarbæk casa son los siguientes: Política de cancelación Se advierte a los huéspedes que la política de cancelación puede diferir según la temporada, la disponibilidad o las restricciones de viaje actuales. Los huéspedes también deben tener en cuenta que esta política puede estar sujeta a cambios y debe confirmarse antes de realizar la reserva. Más detalles pueden estar disponibles en esta página en la descripción de la propiedad. Sin embargo, el check-in temprano o el check-out tardío a veces se pueden negociar entre el invitado y el propietario o el gerente de esta propiedad.